许多客户经常会问:
都是设计师怎么设计费差这么多?
而设计费的因素很多:
方案创新 服务能力 落地交付
如果说前期最直观体现差异的是什么?
一定是:平面!
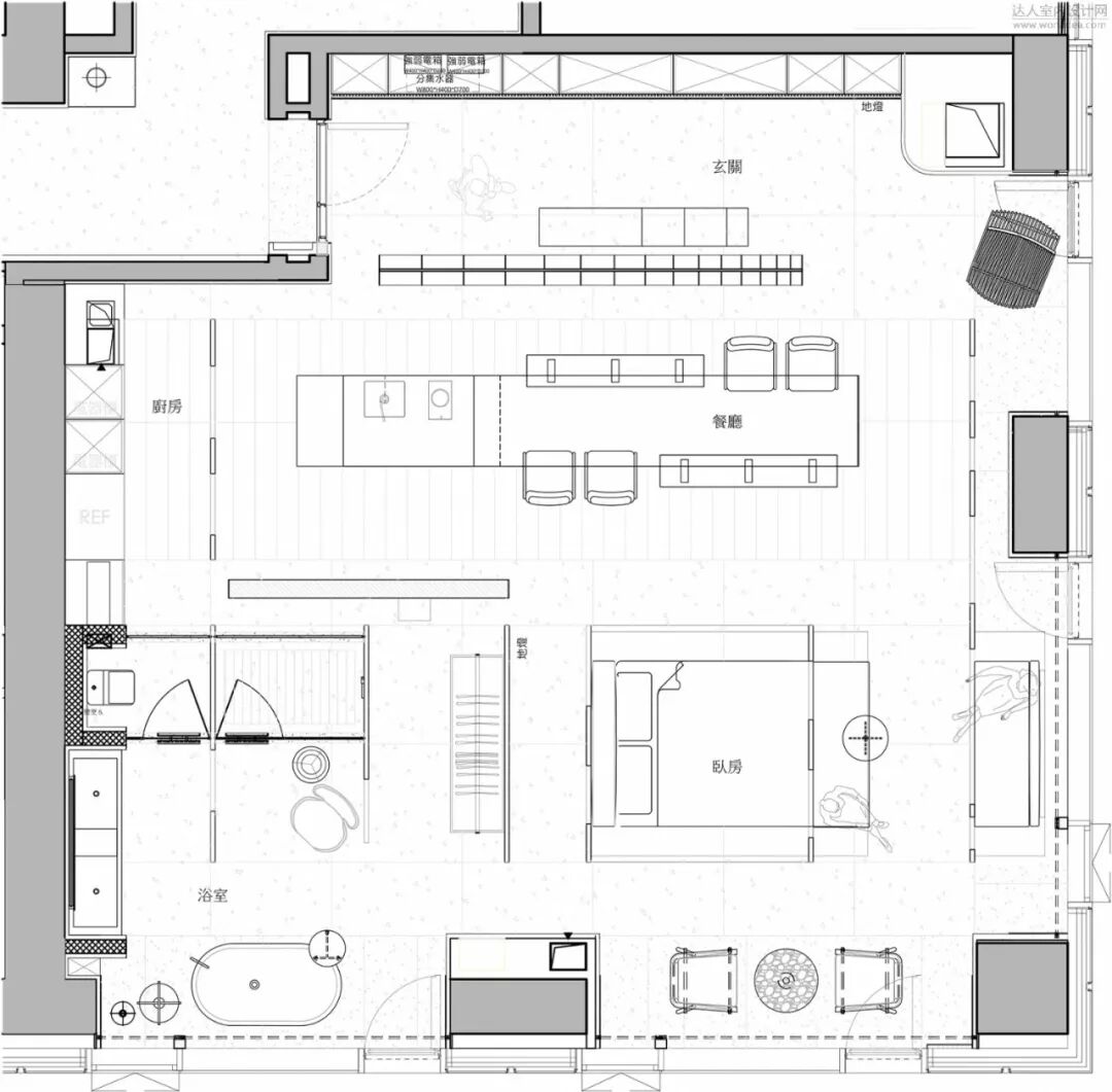
先看看设计大咖的平面
唐忠汉
【台湾设计领军人物】
如同CAD制图 层次丰富 视觉舒服
李玮珉
【豪宅领域最牛设计师】
分区表达 画面和谐 细节呈现
邱德光
【新装饰主义的开创者】
梦幻般设计与演绎 让设计增值
彩平图并不是每一个设计师
都必须熟练掌握的技能,
但却能大大为方案增色 提高签单率!
甚至可以收取更高设计费!
彩平有如下几种常见表达方式
1.
黑白扁平表现
黑白方式通用性最强 很纯粹
适合各种场景 与各种概念方案搭配
本图作者:杨何飞
2.
艺术肌理彩平
这种表达方式能凸显设计的艺术感
提升设计整体艺术气质
本图作者:杨何飞
3.
软装配色彩平
能通过平面图展现软装家具
以及陈设的空间尺度与空间感
本图作者:杨何飞
4.
莫兰迪色彩平
对于色感要求较高的客户
可以用以辅助概念方案 呈现美感
本图作者:杨何飞
5.
虚无化彩平
比较个性化的表现方式
本图作者:杨何飞
6.
灰撞色表现
撞色表现具有极强视觉冲击力
特别能凸显设计的专业性
上一篇:没有了

联系地址ADD: 聊城市东昌西路2号国际商务港5楼509
联系电话TEL:0635-8808750
客服微信:张老师 15653112065